Classic Kit Homes, NSW

Browse 10 new home designs, floorplans and pricing from Classic Kit Homes, available to build across New South Wales.
About
Classic Kit Homes is a family-owned Australian business specialising in the design and supply of affordable kit homes. The company delivers homes across Queensland, Australia and overseas, focusing on pre-designed and customisable solutions to suit individual needs. Its approach centres on providing flexible designs, locally sourced materials where possible and a streamlined supply process, supported by a commitment to customer service and practical guidance throughout the build.
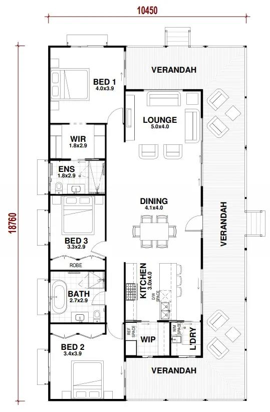
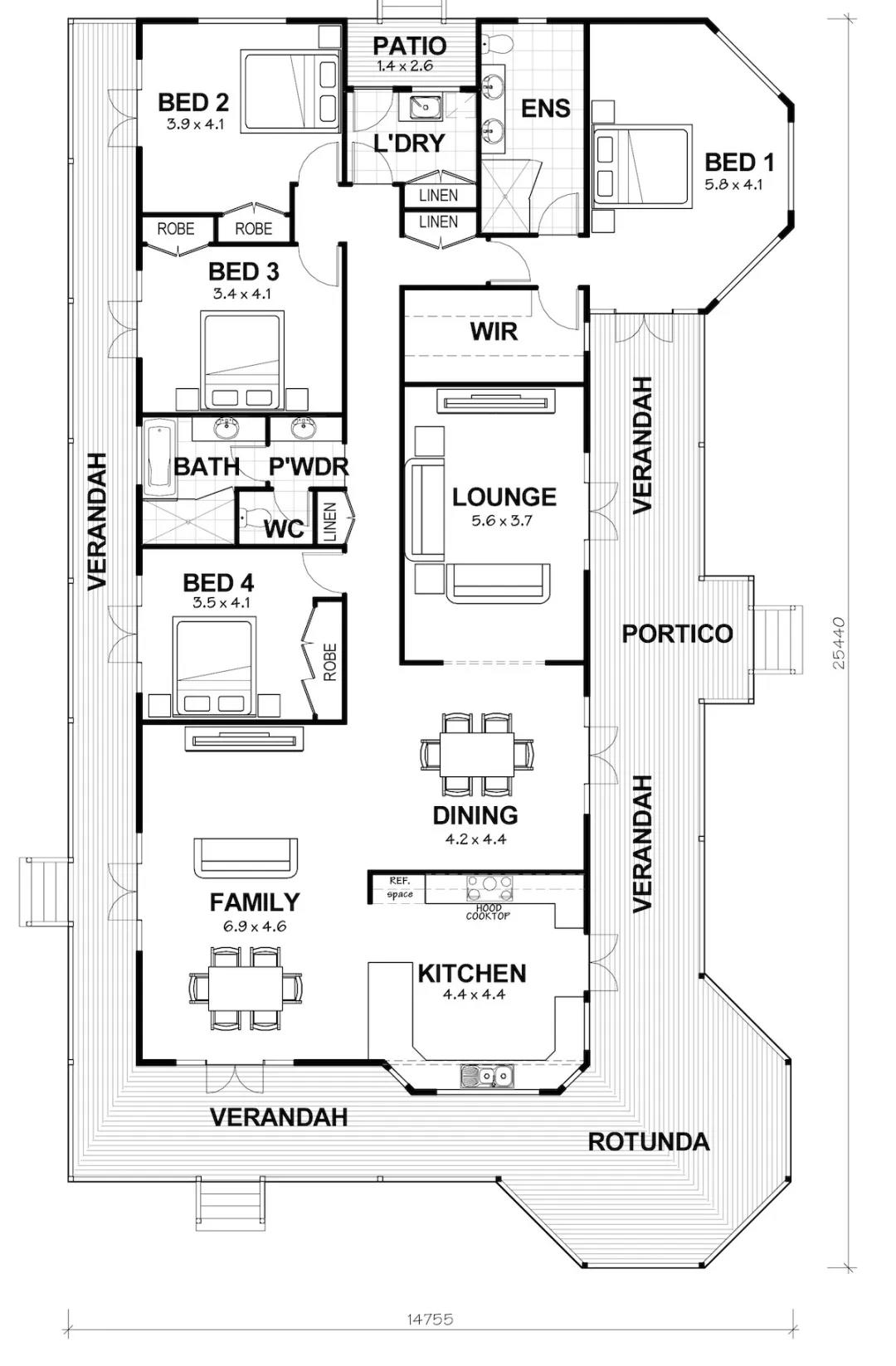
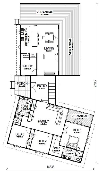
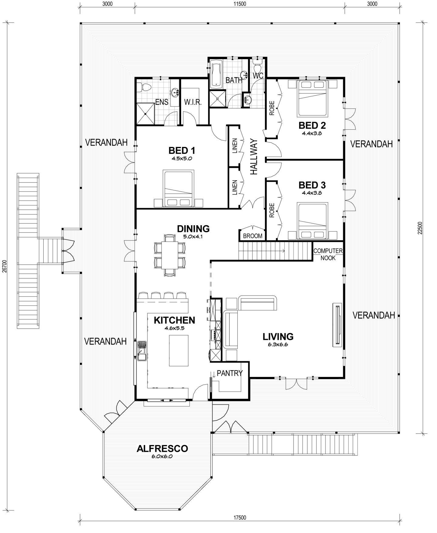
New home designs by Classic Kit Homes, NSW



















