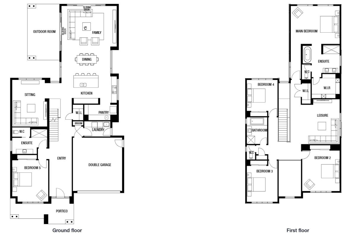
Signature by Metricon, NSW

Browse 9 new home designs, floorplans and pricing from Signature by Metricon, available to build across New South Wales.
About
Signature by Metricon is positioned as Metricon’s most premium range, combining visionary design with a focus on craftsmanship. Homes integrate traditional inspiration with progressive design to suit modern living, supported by refined floorplans, large spaces and considered features. The range specialises in personalised outcomes, offering extensive customisation and flexible service to tailor each home. Built by experienced professionals, it reflects Metricon’s established expertise and emphasis on quality construction.
New home designs by Signature by Metricon, NSW















