1/3
Ridgewater Homes, VIC

Ridgewater Homes, VIC

Established
2017
Ridgewater Homes logo

Browse 21 new home designs, floorplans and pricing from Ridgewater Homes, available to build across Victoria.

About

Ridgewater Homes is a Melbourne-based home builder specialising in custom residential construction. The company provides services including new home builds, knockdown rebuilds, and insolvency builds for projects left incomplete by other builders.

Ridgewater Homes works collaboratively with clients throughout the design and construction process, offering tailored home designs and guiding projects from initial consultation and design development through approvals and construction. The company is also recognised within the industry for design, quality and craftsmanship.

New home designs by Ridgewater Homes, VIC

Browse 21 new home designs, floorplans and pricing from Ridgewater Homes, available to build across Victoria.
Adobe cover
+21
Adobe by Ridgewater Homes, VIC
Crafted for those who desire generous proportions
Double
5
5
2
498.88m² | area
min width
14m | min width
min depth
32m | min depth
Ainslie cover
+22
Ainslie by Ridgewater Homes, VIC
Combines modern family living with smart design
Single
4
2
2
267.29m² | area
min width
14m | min width
min depth
32m | min depth
Knockdown Rebuilds cover
Knockdown Rebuilds by Ridgewater Homes, VIC
Love the location, but not the home? Let’s start fresh
Double
4
Ashley cover
+22
Ashley by Ridgewater Homes, VIC
Blends style and practicality
Single
4
2
2
267.34m² | area
min width
14m | min width
min depth
32m | min depth
Aspen cover
+21
Aspen by Ridgewater Homes, VIC
Aspen 47 is a home designed to impress
Double
4
4
2
432.75m² | area
min width
14m | min width
min depth
28m | min depth
Balmoral Grand cover
+22
Balmoral Grand by Ridgewater Homes, VIC
Spacious luxury living with multiple family zones
Double
5
5
2
460.8m² | area
min width
14m | min width
min depth
32m | min depth
Barkly cover
+21
Barkly by Ridgewater Homes, VIC
Combine modern style with incredible functionality
Double
5
3
2
377.02m² | area
min width
14m | min width
min depth
28m | min depth
Barwon cover
+22
Barwon by Ridgewater Homes, VIC
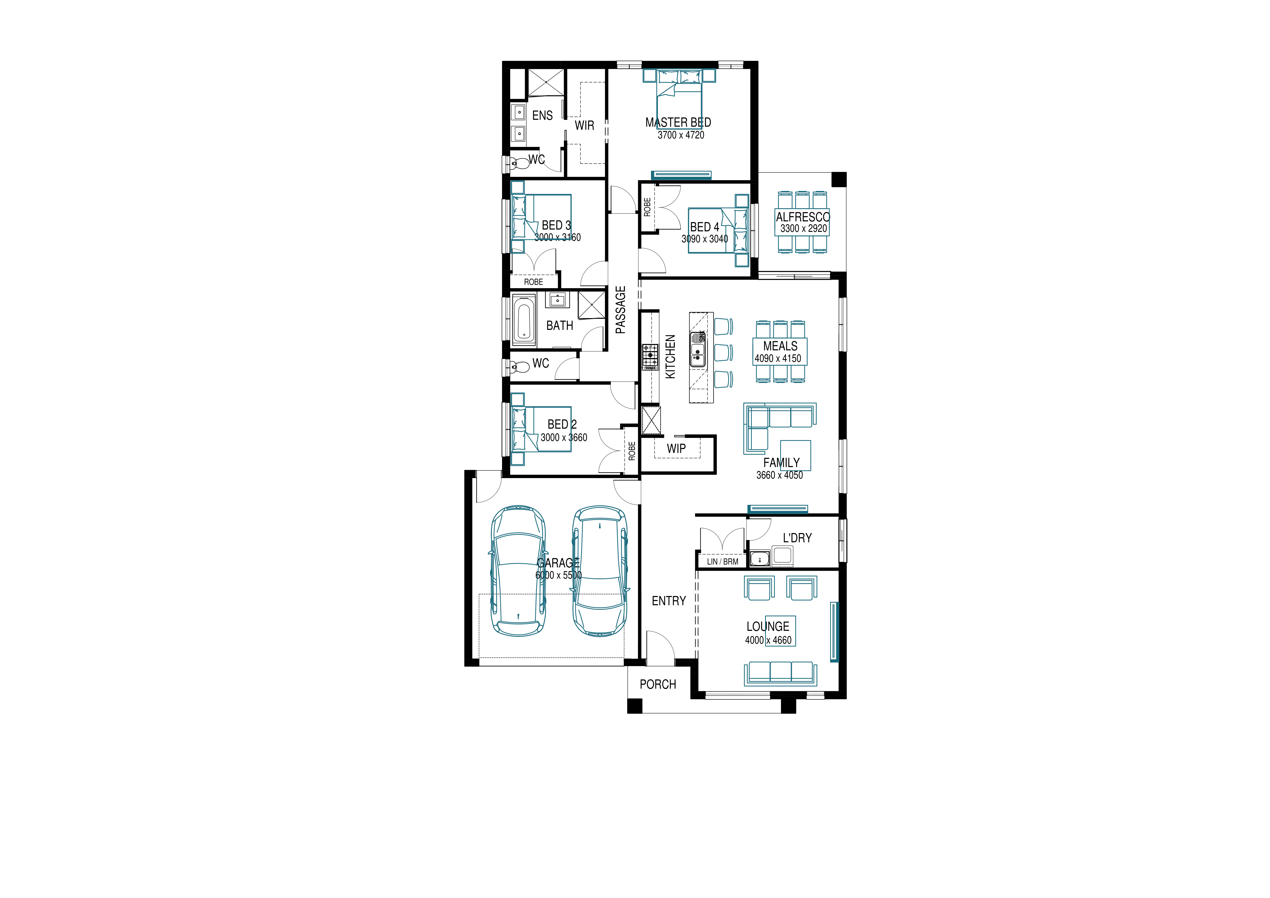
Designed for balance
Single
4
2
2
235.2m² | area
min width
14m | min width
min depth
28m | min depth
Carter cover
+21
Carter by Ridgewater Homes, VIC
Combines modern style with incredible functionality
Double
5
5
2
432.62m² | area
min width
14m | min width
min depth
28m | min depth
Chelsea cover
+21
Chelsea by Ridgewater Homes, VIC
Blends modern style with family functionality
Double
5
3
2
344.17m² | area
min width
12.5m | min width
min depth
28m | min depth
Chicago cover
+21
Chicago by Ridgewater Homes, VIC
Designed to balance style, comfort, and practicality
Double
5
3
2
349.76m² | area
min width
12.5m | min width
min depth
28m | min depth
Astra cover
+21
Astra by Ridgewater Homes, VIC
Designed for modern family living
Double
5
5
2
414.62m² | area
min width
14m | min width
min depth
32m | min depth
Calremont cover
+8
Calremont by Ridgewater Homes, VIC
Double
5
4
2
340.31m² | area
min width
12.5m | min width
min depth
30m | min depth
Conner cover
+13
Conner by Ridgewater Homes, VIC
Double
5
3
2
418.15m² | area
min width
14m | min width
min depth
30m | min depth
Essence cover
+13
Essence by Ridgewater Homes, VIC
Single
4
2
2
306.77m² | area
min width
16m | min width
min depth
34m | min depth
Franklin cover
+13
Franklin by Ridgewater Homes, VIC
Single
4
2
2
226.7m² | area
min width
12.5m | min width
min depth
32m | min depth
Geneva cover
+20
Geneva by Ridgewater Homes, VIC
Double
5
4
2
484.06m² | area
min width
14m | min width
min depth
32m | min depth
Goulburn cover
+13
Goulburn by Ridgewater Homes, VIC
Single
4
2
2
210m² | area
min width
12.5m | min width
min depth
28m | min depth
Hastings cover
+13
Hastings by Ridgewater Homes, VIC
Single
4
2
2
267.35m² | area
min width
16m | min width
min depth
28m | min depth
Hawkins cover
+19
Hawkins by Ridgewater Homes, VIC
Double
5
3
2
357.36m² | area
min width
12.5m | min width
min depth
28m | min depth
Murray cover
+19
Murray by Ridgewater Homes, VIC
Thoughtfully designed for modern families
Single
4
2
2
187.42m² | area
min width
12.5m | min width
min depth
28m | min depth